Besoin d’un coup de main ? Notre équipe répond dès que tu fais signe.
PROGRAMME NIAGUE
Découvrez notre programme de maisons individuelles de 150 m², idéalement situées au cœur de Niague prés de la Cité Douane.

Située à l’ouest du Sénégal, dans la dynamique région de Dakar et rattachée à la commune de Tivaouane-Peulh-Niague (département de Rufisque, arrondissement de Bambilor), Niague, également connue sous le nom de Niaga Ouolof, offre un cadre de vie exceptionnel alliant tranquillité, authenticité et proximité.

À seulement quelques minutes du célèbre Lac Retba, aussi connu sous le nom de Lac Rose, cette localité séduit par son environnement naturel unique et son atmosphère conviviale. Bénéficiant d’une altitude moyenne de 5 mètres, Niague profite d’un climat sahélien doux, rythmé par une agréable saison des pluies de juin à octobre.

Avec une population majoritairement wolof, Niague conserve une forte identité culturelle tout en s’ouvrant progressivement à un développement urbain harmonieux. C’est un lieu idéal pour ceux qui recherchent un équilibre parfait entre vie paisible, traditions locales et accès rapide aux grands centres urbains de Dakar.
Un cadre de vie paisible entre nature et accessibilité
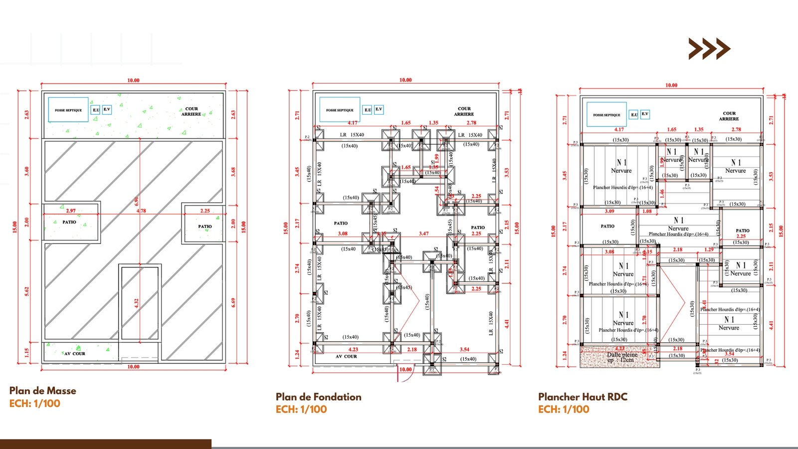
Chaque villa, prête à aménager, dispose de 2 chambres, d’un vaste salon, d’une cuisine moderne et d’espaces extérieurs privatifs (cour familiale et cour arrière). Construites sur des fondations prévues pour un futur R+3, elles offrent déjà tout le confort du rez‑de‑chaussée, avec une maison témoin entièrement achevée (à meubler selon vos envies).
Chaque maison comprend:
- 2 chambres spacieuses
- Un salon lumineux
- Une cuisine moderne
- Des toilettes extérieures
- Une cour familiale à l’avant
- Une cour arrière privée
Un cadre de vie paisible entre nature et accessibilité
- Titre foncier individuel
- Durée estimée de construction : 2 ans
- Situation géographique idéale :à quelques mètres de la route principale et de l’école des Maristes, avec un accès rapide vers Dakar via la RN1 et les transports en commun.
- Les fondations sont conçues pour accueillir un R+3, offrant ainsi un potentiel d’extension future.
- Pour le moment, seul le rez-de-chaussée est construit.